产品中心
APK单轴(Z)平台
Z-轴 2G 加速 最高 100mm 行程和 3 轴选项 15mm 超薄三轴设计 真空吸头 力控制 +/- 3g (配合推荐驱动器) 搭配 APK-ME3 驱动器和其它驱动器
下载附件:
技术参数
  • 产品介绍
  • 规格参数
  • 尺寸图
  • 订购信息

产品特点:

单轴(Z)执行机构,

力控精度可达10g±2g

行程可选25mm、 50mm、 100mm

快速响应和短整定时间

旋转轴由中空贯通

产品用途:适用于高速取放


APK16-Z25
电机参数Z-轴
电机型号APZ2-25
持续推力(自冷) @100?C①6.40 N
峰值推力18.90 N
力常数 ±10%5.0 N/Arms
反电势常数 ±10%4.1 Vpeak/(m/s)
相间电阻 @25°C ±10%②3.6 Ω
相间电感 ±30%③0.8 mH
持续电流(自冷) @100?C①1.3 Arms
峰值电流3.8 Arms
最高母线电压48 Vdc
电磁周期17.1 mm
极数-
机械参数Z-轴
有效行程25 mm
分辨率SINCOS
重复定位精度±1.5 μm
额定负载0.02 kg
空载运动质量0.2 kg
空载总质量0.9 kg
最高加速度20 m/s?
最高加速度0.5 m/s?
最大压力0.8 MPa


注:

1 测量室温25?C,取决于散热环境。

2 电阻测量采用直流电流,含1.0m标准线缆。 

3 电感测量频率1kHz。

相关参数规格如有变动,恕不另行通知。



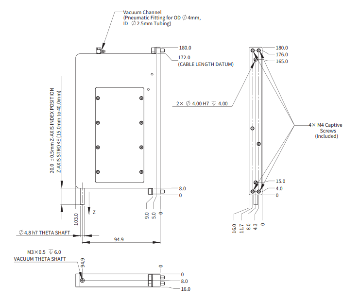
APK2G-Z25 尺寸图

image.png

image.png

在线留言
如果您有任何的建议或意见
请联系我们
cust-service@akribis-sys.cn
+86 21 58595800
留言