产品中心
VRG-III 系列
VRG-III是多功能的龙门平台,电机推力与龙门负载重心一致。使用大推力密度有铁芯AJM、AKM电机,适用于重载多工位方案的设计。
  • 产品介绍
  • 规格参数
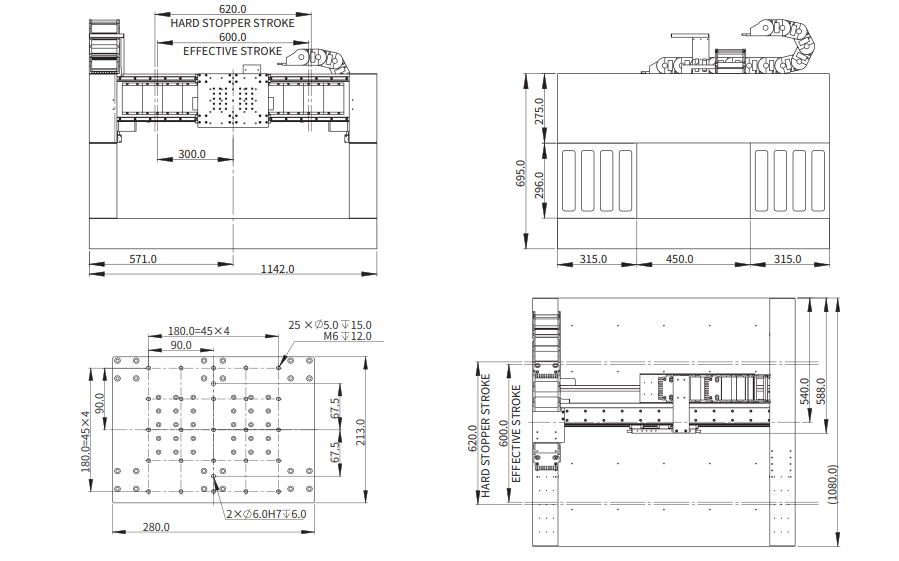
  • 尺寸图
  • 订购信息

设计特点:

A. 多功能的龙门平台,电机推力与龙门负载重心一致

B. 使用有铁芯AJM、AKM电机

C. 推力密度大


电机参数单位LU
电机型号-AUM5-S4×2AUM5-S2
持续推力(自冷) @100?C①N722×2446
峰值推力N1610×21409
力常数 ±10%N/Arms153.097.1
反电势常数 ±10%Vpeak/(m/s)124.979.3
相间电阻 @25?C ±10%②Ω2.35.2
相间电感 ±30%③mH58.023.6
持续电流(自冷) @100?C①Arms9.64.6
峰值电流Arms28.818.0
最高母线电压Vdc600600
电磁周期mm4220
机械参数单位LU
有效行程mm600600
分辨率μm0.5/0.1/SINCOS0.5/0.1/SINCOS
重复定位精度μm±2/±1±2/±1
直线度μm±10±10
平面度μm±10±10
额定负载kgNA50
空载运动质量kg536
空载总质量kg685685
最大静态力矩NmNA20


注:

1 测量时环境温度为25?C,取决于散热环境。

2 电阻测量采用直流电流,含0.5米标准线缆。

3 电感测量频率为1 kHz。

此参数表是此种类型平台典型值。

请联系我们获取更多选项。

特殊环境要求,可定制,请联系cust-service@akribis-sys.cn。

相关参数规格如有变动,恕不另行通知。


image.png

image.png                                                                   

相关产品
VRG-II 系列
在线留言
如果您有任何的建议或意见
请联系我们
cust-service@akribis-sys.cn
+86 21 58595800
留言